Cookies erleichtern die Bereitstellung unserer Dienste. Mit der Nutzung unserer Homepage erklären Sie sich damit einverstanden, dass wir Cookies verwenden.
Weitere Informationen finden Sie in unserer Datenschutzerklärung.

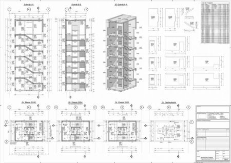
Fertigteil- und Tragwerksplanung

 

Neben dem klassischen Aufgabenfeld der statischen Berechnungen für Ein- und Mehrfamilienhäuser, einschließlich der entsprechenden Schal- und Bewehrungsplanung, hat sich unser Büro im Laufe der vergangenen Jahre auf die Werkplanung von Stahlbeton-Fertigteilen für größere Gewerbeobjekte spezialisiert.

Die unterschiedlichen Bauvorhaben, für die wir die komplette Ausführungs-und Detailplanung, sowie vereinzelt ebenfalls statische Berechnungen ausführen, erstrecken sich über das gesamte Bundesgebiet.

Hierbei handelt es sich neben größeren Bürogebäuden, exemplarisch um Fertigungs- oder Logistikhallen, Parkhäuser und größere Einzelhandelskomplexe.

Aufgrund der umfangreichen Aufgabenstellung der unterschiedlichen Planungsbereiche, gehört hier neben der 2D-, ebenfalls die 3D-Planung der Fertigteile zu unserem Standard.

Produktions- und Bürogebäude Christ, Osterode

Logistikhalle MTU, Ludwigsfelde

Bürogebäude Toyota Deutschland

Daimler Mannheim

Möbelhaus, Aachen

Behindertenzentrum, Kierspe

Neubau einer Werkstatt, Verden

Bürogebäude / Halle, Engelskirchen

Anbau Lidl-Zentrallager, Bremen

Expert-Fachmarkt, Rudolstadt

Erweiterung Sortieranlage, Köln